Развернуть карту

Ильинское-Усово, 2-х комнатная квартира, Заповедная д.12, 11000000 руб.

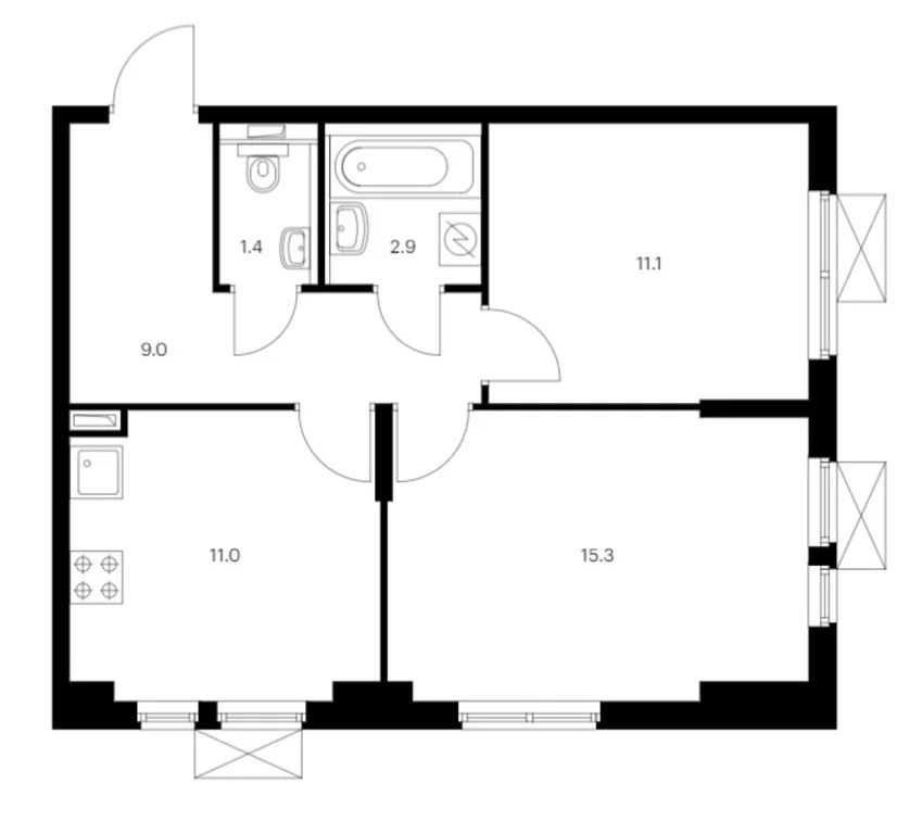
  • Общая площадь, м²50.7
  • Цена в ДКППолная
  • Ипотекавозможна
  • Этаж4 из 9
  • Тип комнатраздельные
  • Комнат2
  • Площадь комнат участвующих в сделке, м²15.3/11.1
  • Жилая площадь, м²26.4
  • Кухня, м²11.0
  • Количество санузлов1
  • Статуссвободна

Продажа двухкомнатной квартиры в новом, зеленом и современном ЖК Ильинские Луга. Концепция город - парк, город в городе со своей инфраструктурой. Множество прогулочных зон, детских и спортивных площадок. Огороженный благоустроенный двор без машин.

Квартира сдавалась, но арендаторы относились к квартире бережно, поэтому все в хорошем состоянии. Меблирована. Все, как на фото. Отдельно кухня и две изолированные комнаты.

По документам: один взрослый собственник, приобреталась у Застройщика по ДДУ в сентябре 2020г., никто не прописан, без маткапитала, без обременений. Без перепланировок. Полная стоимость в договоре. Площадь указана точно, как в выписке из ЕГРН.
Продажа СВОБОДНАЯ.
Квартира приобреталась, как инвестиция. Причина продажи - покупка другой недвижимости, также для инвестиции.



11000000 руб. | 166646 $ | 146040 €

Прошин Андрей Витальевич

+7 (926) 404-44-30

Добавлено: 02 Dec 2025, 17:20:32


За те же деньги